ALL OFFERS BY 1PM THURS 3RD JULY 2025
PRICE GUIDE - OFFERS FROM HIGH $1,000,000's
- Immaculate, spacious Commercial property
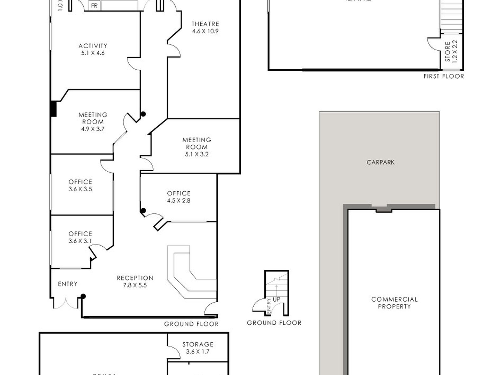
- Land area 668sqm
- 454sqm of Leasable area
- 9 carbays on site
This well presented building is in a prime Oxford Street location
The property provides an internal floor area of 454sqm (Ground floor 313sqm and 141sqm, with a regular shaped 668sqm site, including side access to the rear of the property and 7 designated rear car bays with 2 to the front of the property (9 car bays in total)
To be sold as a going concern - Zoned Commercial - height limit of 4 storeys for any future development
Ground floor plus basement 313 sqm
Lease term expiring 31/01/2027
Rent $4,100.00 per month + GST (plus outgoings)
First Floor office 137 sqm
Lease term monthly tenancy
Rent $1,800.00 per month + GST (includes outgoings)
Outgoings
- Council rates $9,074.52 per annum
- Water Rates $3,897.10 per annum
SALE PROCESS
The property is being sold as "OFFERS FROM HIGH $1,000,000's"
Information Memorandum is available on request.
For further information or to arrange a viewing inspection please contact Mark Merenda on 0407 468 202








































