PRESENTING ALL OFFERS ABOVE $1,000,000 (n.b. price guide only)
Located in one of Burswoods finest treelined streets, this property is located close to the Perth CBD, Crown Entertainment Complex, The Swan River & Vic Park café strip just to name a few places. Within excellent proximity to public transport and an array of shops and parks. Move quickly as this property will not last!
Features include;
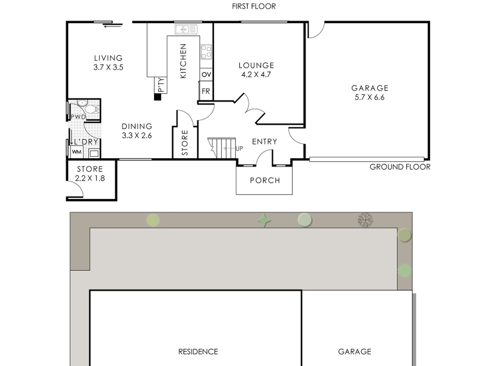
-177m2 approx. of living under main roof (includes garage) on 216m2 of Strata Land (built in 2003)
-Kitchen finished with laminated benchtops & more than ample cupboard space
-Spacious open plan kitchen, dining and living area with direct access to your rear paved courtyard
-Separate lounge room located to the front of the home
-Fujitsu fully ducted reverse cycle A/C throughout the home
-King sized master bedroom featuring a walk in robe and ensuite bathroom with shower, bath, basin & w/c
-2nd & 3rd bedrooms featuring built-in robes
-Second bathroom featuring shower, bath & basin
-Separate w/c located upstairs
-Additional linen cupboard located upstairs
-Separate laundry with direct access to side courtyard area
-powder room with w/c located downstairs
-Window treatments & skirting boards throughout the property
-Double remote control garage with shoppers entrance to the home.
-Gas hot water system
-Additional store room located to the side of the home
-Bonus storage located under the stairs
-Council Rates: $2,702.60 (Town of Victoria Park) approx. per annum.
-Water Rates: $1,306.06 approx. per annum.
-Strata Fees: $427.50 per qtr (includes reserve fund & common property insurances)
Disclaimer: The information provided herein has been prepared with care however it is subject to change and cannot form part of any offer or contract. Whilst all reasonable care has been taken in preparing this information, the seller or their representative or agent cannot be held responsible for any inaccuracies. Interested parties must be sure to undertake their own independent enquiries.


















































